Predstavujeme vám výnimočný stavebný pozemok v jednej z najpokojnejších a najvyhľadávanejších častí mesta Sliač – Rybáre. Táto ponuka spája ideálnu lokalitu, súkromie a premyslenú architektonickú víziu budúceho bývania.
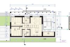
Súčasťou predaja je aj vypracovaná štúdia moderného prízemného rodinného domu, ktorá poskytuje skvelý základ pre realizáciu vášho vysnívaného bývania – s možnosťou úprav podľa vašich individuálnych predstáv.
Sliač je známy svojou kúpeľnou tradíciou a kvalitným životným prostredím. Významným benefitom je aj skutočnosť, že pozemok sa nachádza v bezletovej zóne, čo zaručuje pokojné a nerušené bývanie aj do budúcnosti.
Pozemok je situovaný na konci slepej ulice, v existujúcej zástavbe rodinných domov, čo eliminuje nepríjemnosti spojené s budúcou výstavbou v okolí a zároveň poskytuje dostatok súkromia.
Jeho ideálne rozmery (cca 20 × 40 m) a priaznivá orientácia umožňujú maximálne využiť potenciál priestoru a vytvoriť harmonické bývanie pre náročného klienta. Pozemok disponuje aj prirodzene upravenou záhradou s rodiacimi stromami, kríkmi a ihličnanmi, ktorá dodáva miestu jedinečnú atmosféru.
ZÁKLADNÉ INFORMÁCIE:
• Rozloha: cca 830 m²
• Typ: rovinatý pozemok
• Inžinierske siete: všetky dostupné na pozemku (vodovod, kanalizácia, elektrina – NN podzemné vedenie, plyn, vlastná studňa)
ARCHITEKTONICKÁ ŠTÚDIA:
• Prízemný rodinný dom
• Úžitková plocha: 95,30 m²
• Terasa: 63 m²
• 2 parkovacie miesta
• Možnosť úpravy na 4-izbovú dispozíciu
CENA: 260 000 €
Táto ponuka splní všetky Vaše náročné kritéria
V prípade záujmu o bližšie informácie alebo obhliadku ma neváhajte kontaktovať:
Anna Rosenbergerová 0905 577 305
V termíne od 29. 4. 2026 do 4. 5. 2026 prosím kontaktujte
e-mailom: ankarosen@gmail.com
Kontakt
| Meno: | anna rosenbergerová |
| Telefón: | 0905 577 305 |
| Cena: | 260 000 € |